Сколько сегодня стоит уложить SPC-ламинат?🤔
▫️SPC-ламинат - это один из самых универсальных и доступных материалов. Средняя стоимость составляет 2000-2500 рублей. Именно на этом варианте я остановился во время ремонта своей квартиры.
▫️Чистовая отделка пола, для площади 60кв.м, обошлась в 157.800 рублей. А теперь коротко по позициям:
- SPC-ламинат - 2200р за квадратный метр (132.000 рублей);
- 15% на подрезку - 19.800 рублей;
- Подложка листовая 1.5мм - 100р за квадрат (6000 рублей);
▫️Если отделку будет производить мастер, то для укладки "английской ёлочкой" смело закладывайте 1000-1500р за квадрат. Палубная раскладка выйдет дешевле. 500-1000 рублей.
▫️Если же у вас есть время и желание, то можете попробовать уложить пол самостоятельно. Это значительно сэкономит ваши расходы.
▫️Примыкание кварц-винила с плиткой лучше всего осуществлять при помощи силиконового герметика в цвет дерева. Могу поделиться ссылкой.
▫️Царапается ли SPC-ламинат? Да! Точно также, как инженерная доска, кварцевый паркет и другие материалы. Но если к ремонту относиться бережно, то и через 10 лет он будет выглядеть как новый)
Всем легкой и продуктивной недели✌️
Дизайнер интерьера | Сергей Кожевников
🔸Связаться со мной можно тут:
https://max.ru/u/f9LHodD0cOJsTJAUPpuA1SK08_dEWnr3POjlcc6tFBm2jAhdK0tR6_246BA
🔸Создаю продуманные дизайн-проекты, как подробную инструкция для вашего ремонта.
🔸Предоставляю проверенную бригаду мастеров, которая реализует ваш проект в Москве и МО.
https://max.ru/u/f9LHodD0cOJsTJAUPpuA1SK08_dEWnr3POjlcc6tFBm2jAhdK0tR6_246BA
🔸Создаю продуманные дизайн-проекты, как подробную инструкция для вашего ремонта.
🔸Предоставляю проверенную бригаду мастеров, которая реализует ваш проект в Москве и МО.
Какая плитка не выйдет из моды?🤔
▫️Освежить свой интерьер путем замены штор, мягкой мебели и даже цвета стен, достаточно просто, но куда сложнее и дороже обновить в квартире плитку.
▫️Средняя стоимость качественного керамогранита сегодня составляет около 3500 рублей за квадрат. Укладка плитки с клеем и затиркой обойдется еще около 3000 рублей.
▫️Именно поэтому многие задаются вопросом: "Какая плитка будет актуальна долгие годы, чтобы ее не пришлось менять лет через 5-10?".
▫️Забегая вперед, сразу скажу, что лучше выбирать плитку с рисунками натуральных материалов, например:
- Плитка под мрамор (глянцевая, матовая);
- Плитка под дерево;
- Плитка под камень (песчаник, бетон);
▫️Для классических интерьеров отлично подходит плитка под мрамор и оникс, как с глянцевой, так и матовой поверхностью. Для современного оформления лучше применять матовую плитку.
▫️Если ванная комната достаточно компактная, то достаточно уложить единую плитку на пол и стены. Обыграть помещение можно будет с помощью мебели и освещения.
▫️Использовать ту же плитку можно и на фартуке кухни. Такой прием отлично подходит для квартир малой и средней квадратуры. А наиболее удобными форматами будут: 60х60 и 120х60.
Из производителей могу рекомендовать:
- Kerranova
- Italon
- Kerama Marazzi
- Laparet
Чуть позже поделюсь уже законченным результатом этой ванной комнаты и всеми ценами)
▫️Освежить свой интерьер путем замены штор, мягкой мебели и даже цвета стен, достаточно просто, но куда сложнее и дороже обновить в квартире плитку.
▫️Средняя стоимость качественного керамогранита сегодня составляет около 3500 рублей за квадрат. Укладка плитки с клеем и затиркой обойдется еще около 3000 рублей.
▫️Именно поэтому многие задаются вопросом: "Какая плитка будет актуальна долгие годы, чтобы ее не пришлось менять лет через 5-10?".
▫️Забегая вперед, сразу скажу, что лучше выбирать плитку с рисунками натуральных материалов, например:
- Плитка под мрамор (глянцевая, матовая);
- Плитка под дерево;
- Плитка под камень (песчаник, бетон);
▫️Для классических интерьеров отлично подходит плитка под мрамор и оникс, как с глянцевой, так и матовой поверхностью. Для современного оформления лучше применять матовую плитку.
▫️Если ванная комната достаточно компактная, то достаточно уложить единую плитку на пол и стены. Обыграть помещение можно будет с помощью мебели и освещения.
▫️Использовать ту же плитку можно и на фартуке кухни. Такой прием отлично подходит для квартир малой и средней квадратуры. А наиболее удобными форматами будут: 60х60 и 120х60.
Из производителей могу рекомендовать:
- Kerranova
- Italon
- Kerama Marazzi
- Laparet
Чуть позже поделюсь уже законченным результатом этой ванной комнаты и всеми ценами)
Идеи в оформлении💡
Оформить квартиру в современной классике может абсолютно каждый и сейчас я покажу, какие приемы для этого нужно использовать.
1️⃣ Все стены окрашиваем одной краской, приглушенных оттенков. Для пробных выкрасов могу рекомендовать следующие номера красок: H484, G497, G486, F486, F487. (Tikkurila)
2️⃣ Декорируем стены с помощью молдингов и реек в цвет стен. Окрашивать декор другим цветом не стоит. Излишняя демонстрация декора может только испортить оформление.
3️⃣ Всегда выбираем пол темнее цвета стен. Если стены окажутся темнее пола, то помещение будет казаться визуально меньше.
4️⃣ Белая плитка под мрамор для фартука кухни до сих тор остается одной из самых актуальных и беспроигрышных. Применять можно как матовую, так и глянцевую плитку.
5️⃣ Шторы для подобного оформления лучше всего подойдут теплых оттенков, но слегка темнее стен. По возможности, возьмите с собой образец для сравнения.
Уверен, вы справитесь не хуже большинства дизайнеров! Но скорее всего, даже лучше) ✌️
Оформить квартиру в современной классике может абсолютно каждый и сейчас я покажу, какие приемы для этого нужно использовать.
1️⃣ Все стены окрашиваем одной краской, приглушенных оттенков. Для пробных выкрасов могу рекомендовать следующие номера красок: H484, G497, G486, F486, F487. (Tikkurila)
2️⃣ Декорируем стены с помощью молдингов и реек в цвет стен. Окрашивать декор другим цветом не стоит. Излишняя демонстрация декора может только испортить оформление.
3️⃣ Всегда выбираем пол темнее цвета стен. Если стены окажутся темнее пола, то помещение будет казаться визуально меньше.
4️⃣ Белая плитка под мрамор для фартука кухни до сих тор остается одной из самых актуальных и беспроигрышных. Применять можно как матовую, так и глянцевую плитку.
5️⃣ Шторы для подобного оформления лучше всего подойдут теплых оттенков, но слегка темнее стен. По возможности, возьмите с собой образец для сравнения.
Уверен, вы справитесь не хуже большинства дизайнеров! Но скорее всего, даже лучше) ✌️
Сколько сегодня стоит обустроить кухню? 🤔
▫️Кухня - это самое затратное помещение в квартире, так как помимо самой мебели, нам еще нужно закупить всю технику и уложить плитку на фартуке.
▫️Квадратный метр качественного керамогранита выйдет в 3000 - 4000 рублей. Укладка плитки еще около 2000 - 3000 рублей за квадрат.
▫️Вместо плитки, мы можем применить готовую МДФ панель для фартука с ламинацией (4100х640х8мм, Egger). В среднем, она обойдется в 11-12 тысяч рублей.
Актуальные цены на встроенную технику, в среднем сегменте:
- Холодильник - 90000 рублей;
- Посудомойка - 35000 рублей;
- Варочная поверхность - 30000 рублей;
- Духовой шкаф - 30000 рублей;
- Встраиваемая СВЧ - 25000 рублей;
- Встраиваемая вытяжка - 15000 рублей;
ИТОГО: 225000 рублей.
▫️Стоимость самой кухни может варьироваться от 40000 рублей, за самый бюджетный вариант с OZON и WB, и до бесконечности)
▫️Но в среднем, угловая кухня 2х3 метра со столешницей из акрила, выйдет в 250-350 тысяч, в зависимости от производителя, типа фасадов, фурнитуры и наполнения.
▫️А если совсем коротко, то можно смело закладывать около 450-500 тысяч для обустройства новой кухни, со всей мебелью, техникой и фартуком. Поверьте, это еще демократично)
▫️Да, ремонт квартиры никогда не был легким и бюджетным процессом. Но уверен, у вас все получится и вы со всем справитесь)
Надеюсь, что это простая смета будет для вас полезна ✌🏻
▫️Кухня - это самое затратное помещение в квартире, так как помимо самой мебели, нам еще нужно закупить всю технику и уложить плитку на фартуке.
▫️Квадратный метр качественного керамогранита выйдет в 3000 - 4000 рублей. Укладка плитки еще около 2000 - 3000 рублей за квадрат.
▫️Вместо плитки, мы можем применить готовую МДФ панель для фартука с ламинацией (4100х640х8мм, Egger). В среднем, она обойдется в 11-12 тысяч рублей.
Актуальные цены на встроенную технику, в среднем сегменте:
- Холодильник - 90000 рублей;
- Посудомойка - 35000 рублей;
- Варочная поверхность - 30000 рублей;
- Духовой шкаф - 30000 рублей;
- Встраиваемая СВЧ - 25000 рублей;
- Встраиваемая вытяжка - 15000 рублей;
ИТОГО: 225000 рублей.
▫️Стоимость самой кухни может варьироваться от 40000 рублей, за самый бюджетный вариант с OZON и WB, и до бесконечности)
▫️Но в среднем, угловая кухня 2х3 метра со столешницей из акрила, выйдет в 250-350 тысяч, в зависимости от производителя, типа фасадов, фурнитуры и наполнения.
▫️А если совсем коротко, то можно смело закладывать около 450-500 тысяч для обустройства новой кухни, со всей мебелью, техникой и фартуком. Поверьте, это еще демократично)
▫️Да, ремонт квартиры никогда не был легким и бюджетным процессом. Но уверен, у вас все получится и вы со всем справитесь)
Надеюсь, что это простая смета будет для вас полезна ✌🏻
Идеи в оформлении💡
▫️Сейчас я поделюсь с вами пятью секретами в дизайне, с помощью которых вы сможете оформить интерьер небольшой спальни или детской не хуже любого дизайнера.
1️⃣ Если помещение небольшое, то кровать располагаем вдоль стены, а не по центру помещения. Таким образом мы по максиму сохраняем свободное пространство.
2️⃣ Рабочий стол всегда располагаем ближе к окну. А для того, чтобы визуально выделить рабочую зону, на стене за столом можем применить стеновые панели из ЛДСП, к примеру под дерево.
3️⃣ Чтобы увеличить количество мест для хранения, над кроватью предусматриваем антресольные шкафы, которые в свою очередь дополнительно создают уютную нишу для кровати.
4️⃣ В качестве декора, можем использовать рейки из ЛДСП или МДФ в более темном цвете, например в грифельном, чтобы создать визуальный контраст и выделить эту зону на фоне светлых стен.
5️⃣ Применять одну единственную люстру на потолке не стоит. Лучше всего установить точечные светильники по периметру помещения или трековую систему. Точечные обойдутся гооораздо дешевле)
▫️Согласитесь, ничего особо сложного в оформлении интерьера нет) Всем легкой рабочей недели ✌️
▫️Сейчас я поделюсь с вами пятью секретами в дизайне, с помощью которых вы сможете оформить интерьер небольшой спальни или детской не хуже любого дизайнера.
1️⃣ Если помещение небольшое, то кровать располагаем вдоль стены, а не по центру помещения. Таким образом мы по максиму сохраняем свободное пространство.
2️⃣ Рабочий стол всегда располагаем ближе к окну. А для того, чтобы визуально выделить рабочую зону, на стене за столом можем применить стеновые панели из ЛДСП, к примеру под дерево.
3️⃣ Чтобы увеличить количество мест для хранения, над кроватью предусматриваем антресольные шкафы, которые в свою очередь дополнительно создают уютную нишу для кровати.
4️⃣ В качестве декора, можем использовать рейки из ЛДСП или МДФ в более темном цвете, например в грифельном, чтобы создать визуальный контраст и выделить эту зону на фоне светлых стен.
5️⃣ Применять одну единственную люстру на потолке не стоит. Лучше всего установить точечные светильники по периметру помещения или трековую систему. Точечные обойдутся гооораздо дешевле)
▫️Согласитесь, ничего особо сложного в оформлении интерьера нет) Всем легкой рабочей недели ✌️
Какой потолок лучше, натяжной или ГКЛ?🤔
▫️Одни считают, что отделку потолка нужно производить только экологичным гипсокартоном! Другие же напротив, утверждают что гипсокартон - это бесполезная трата денег и что натяжка будет ничем не хуже, и гораздо дешевле.
▫️На самом деле, натяжной потолок уже давно не является каким-то дешевым решением для квартир под сдачу в аренду. Средняя стоимость натяжки с теневым профилем KRAAB обходится в 2500 рублей за квадрат. Гипсокартон выйдет от 4500 рублей.
▫️Главным же преимуществом натяжного потолка является время его установки. В большинстве случаев, монтаж занимает от 1 до 4 дней, в зависимости от площади и сложности.
▫️Натяжные потолки не боятся повышенной влажности и в случае затопления квартиры соседями, полотно можно использовать повторно, без замены на новое.
▫️Да, ПВХ потолки не обладают такой же экологичностью, как гипсокартон, однако вредные вещества могут выделяться только при температуре помещения свыше 60-ти градусов.
▫️Пожалуй единственным и объективным недостатком натяжных потолков будет ограничения полотна по ширине, а именно 5 метров. Если помещение шире, то между полотнами будет образован шов.
💡Подведем короткий итог
▫️У каждого из видов отделки есть свои преимущества и недостатки. Сказать что гипсокартон однозначно лучше натяжного потолка, никак нельзя.
▫️Поэтому при выборе отделки лучше всего обратить внимание на планируемый бюджет для ремонта и только на основе этого, делать свой осознанный выбор.
Всем солнечной и легкой недели✌🏻
▫️Одни считают, что отделку потолка нужно производить только экологичным гипсокартоном! Другие же напротив, утверждают что гипсокартон - это бесполезная трата денег и что натяжка будет ничем не хуже, и гораздо дешевле.
▫️На самом деле, натяжной потолок уже давно не является каким-то дешевым решением для квартир под сдачу в аренду. Средняя стоимость натяжки с теневым профилем KRAAB обходится в 2500 рублей за квадрат. Гипсокартон выйдет от 4500 рублей.
▫️Главным же преимуществом натяжного потолка является время его установки. В большинстве случаев, монтаж занимает от 1 до 4 дней, в зависимости от площади и сложности.
▫️Натяжные потолки не боятся повышенной влажности и в случае затопления квартиры соседями, полотно можно использовать повторно, без замены на новое.
▫️Да, ПВХ потолки не обладают такой же экологичностью, как гипсокартон, однако вредные вещества могут выделяться только при температуре помещения свыше 60-ти градусов.
▫️Пожалуй единственным и объективным недостатком натяжных потолков будет ограничения полотна по ширине, а именно 5 метров. Если помещение шире, то между полотнами будет образован шов.
💡Подведем короткий итог
▫️У каждого из видов отделки есть свои преимущества и недостатки. Сказать что гипсокартон однозначно лучше натяжного потолка, никак нельзя.
▫️Поэтому при выборе отделки лучше всего обратить внимание на планируемый бюджет для ремонта и только на основе этого, делать свой осознанный выбор.
Всем солнечной и легкой недели✌🏻
Идеи в оформлении💡
▫️Квартира с кухней-гостиной - это мечта многих, но далеко не во всех случаях эти помещения объединены. Если это ваш случай, то эти идеи будут для вас полезны.
▫️Гостиная, чаще всего - это помещение для отдыха, просмотра телевизора и приема гостей.
▫️Но именно изолированная гостиная может выполнять функцию и полноценного кабинета в том числе, что в последние годы стало особенно актуально с удаленной работой.
▫️Разделять помещение различными стеллажами и шкафами, совсем необязательно. Тем более, что такие приемы могут сделать гостиную темной.
▫️Чтобы самому визуально разделить помещение на 2 зоны, мы можем использовать стеновые панели из ЛДСП.
▫️Панели под дерево лучше всего расположить за рабочим столом. Таким образом мы визуально выделяем рабочую зону от светлой зоны отдыха.
▫️В предыдущем посте я наглядно показал, как можно осуществить похожий прием при помощи таких панелей.
▫️Стену за телевизором можно традиционно оформить при помощи реек в цвет стен. Такой прием по-прежнему актуален и активно применяется в современных интерьерах.
Согласитесь, ничего особо сложного в оформлении и зонировании гостиной нет. Уверен, вы тоже с этим легко справитесь)👌
▫️Квартира с кухней-гостиной - это мечта многих, но далеко не во всех случаях эти помещения объединены. Если это ваш случай, то эти идеи будут для вас полезны.
▫️Гостиная, чаще всего - это помещение для отдыха, просмотра телевизора и приема гостей.
▫️Но именно изолированная гостиная может выполнять функцию и полноценного кабинета в том числе, что в последние годы стало особенно актуально с удаленной работой.
▫️Разделять помещение различными стеллажами и шкафами, совсем необязательно. Тем более, что такие приемы могут сделать гостиную темной.
▫️Чтобы самому визуально разделить помещение на 2 зоны, мы можем использовать стеновые панели из ЛДСП.
▫️Панели под дерево лучше всего расположить за рабочим столом. Таким образом мы визуально выделяем рабочую зону от светлой зоны отдыха.
▫️В предыдущем посте я наглядно показал, как можно осуществить похожий прием при помощи таких панелей.
▫️Стену за телевизором можно традиционно оформить при помощи реек в цвет стен. Такой прием по-прежнему актуален и активно применяется в современных интерьерах.
Согласитесь, ничего особо сложного в оформлении и зонировании гостиной нет. Уверен, вы тоже с этим легко справитесь)👌
Как оформить квартиру стильно и при этом недорого?🤔
▫️Объемная отделка стен - это один из самых эффектных приемов, с помощью которого можно оформить не только новый ремонт, но и освежить уже имеющийся.
▫️Чаще всего, объемная отделка в интерьере применяется в виде: настенных молдингов, реек или панелей.
▫️Настенные молдинги, в большинстве случаев, применяются гипсовые и устанавливать их лучше еще предчистовом этапе ремонта.
▫️А вот с рейками и панелями все гораздо проще. Их можно установить как в процессе ремонта, так и после завершения всех отделочных работ.
▫️Рейки и панели изготавливаются из: ЛДСП, МДФ и дюрополимера (пластик). Рейки и панели из ЛДПС будут наиболее доступными, с установкой которых может справиться практически каждый.
▫️Для того чтобы закрепить панель или реку на стене, вам понадобится всего лишь: двусторонний скотч и "жидкие гвозди".
▫️Заказать подобные панели можно практически в любом салоне корпусной мебели или у частных мастеров, которые занимаются изготовлением и установкой корпусной мебели.
Строго не судите, это еще не финальный результат))
▫️Объемная отделка стен - это один из самых эффектных приемов, с помощью которого можно оформить не только новый ремонт, но и освежить уже имеющийся.
▫️Чаще всего, объемная отделка в интерьере применяется в виде: настенных молдингов, реек или панелей.
▫️Настенные молдинги, в большинстве случаев, применяются гипсовые и устанавливать их лучше еще предчистовом этапе ремонта.
▫️А вот с рейками и панелями все гораздо проще. Их можно установить как в процессе ремонта, так и после завершения всех отделочных работ.
▫️Рейки и панели изготавливаются из: ЛДСП, МДФ и дюрополимера (пластик). Рейки и панели из ЛДПС будут наиболее доступными, с установкой которых может справиться практически каждый.
▫️Для того чтобы закрепить панель или реку на стене, вам понадобится всего лишь: двусторонний скотч и "жидкие гвозди".
▫️Заказать подобные панели можно практически в любом салоне корпусной мебели или у частных мастеров, которые занимаются изготовлением и установкой корпусной мебели.
Строго не судите, это еще не финальный результат))
Когда лучше класть плитку на фартук?🤔
▫️Одни говорят, что сначала нужно установить кухню, а уже потом укладывать плитку. Другие же напротив, настаивают на противоположной последовательности.
▫️На самом деле, оба варианта рабочие, но все-таки, я рекомендую сначала закончить все отделочные работы, а уже потом наполнять квартиру мебелью и декором.
▫️Дело в том, что разведение плиточного клея, резка плитки и запилы под 45 градусов, это достаточно пыльная работа, которую лучше осуществлять в начале ремонта, а не в конце.
▫️То есть, нам гораздо проще закончить все пыльные работы, рассчитаться с мастерами и спокойно заниматься обустройством квартиры мебелью и оформлением интерьера.
▫️Ничего сложного в подгонке столешницы с плиткой нет. Все кухню имеют ножки, которые регулируются по высоте. А для того, чтобы точно не ошибиться, укладывайте плитку на высоте 90см от пола.
▫️Стык между столешницей и плиткой оформляется при помощи силиконового герметика, поэтому использовать пристеночные бортики совсем необязательно.
Всем солнечной и теплой недели) ✌🏻
▫️Одни говорят, что сначала нужно установить кухню, а уже потом укладывать плитку. Другие же напротив, настаивают на противоположной последовательности.
▫️На самом деле, оба варианта рабочие, но все-таки, я рекомендую сначала закончить все отделочные работы, а уже потом наполнять квартиру мебелью и декором.
▫️Дело в том, что разведение плиточного клея, резка плитки и запилы под 45 градусов, это достаточно пыльная работа, которую лучше осуществлять в начале ремонта, а не в конце.
▫️То есть, нам гораздо проще закончить все пыльные работы, рассчитаться с мастерами и спокойно заниматься обустройством квартиры мебелью и оформлением интерьера.
▫️Ничего сложного в подгонке столешницы с плиткой нет. Все кухню имеют ножки, которые регулируются по высоте. А для того, чтобы точно не ошибиться, укладывайте плитку на высоте 90см от пола.
▫️Стык между столешницей и плиткой оформляется при помощи силиконового герметика, поэтому использовать пристеночные бортики совсем необязательно.
Всем солнечной и теплой недели) ✌🏻
Идеи в оформлении💡
▫️Чтобы самому оформить кухню, достаточно всего лишь найти подходящий образец и просто повторить приемы. Тот же "Pinterest" поможет вам в этом.
▫️Но какой бы не была красивой картинка, на фартуке лучшего всего применять именно плитку, без каких-либо пристеночных бортиков.
▫️А самым беспроигрышным вариантом будут рисунки: мрамора, оникса и песчаника. Средняя стоимость плитки сегодня составляет около 3.000-4.000 рублей за квадрат.
▫️Из производителей могу смело рекомендовать:
- ITALON;
- Kerama marazzi;
▫️Выделять фасады кухни яркими цветами - не самая лучшая идея, особенно без опыта оформления. Лучше всего "разбейте" кухню на 2 цвета. Например: серый и белый.
▫️Нижние фасады кухни могут быть темными, а верхние навесные - светлыми. Также можно попробовать сделать и наоборот, что я и сделал в одном из проектов. Здесь уже дело вкуса)
Всем солнечной и продуктивной недели ✌🏻
▫️Чтобы самому оформить кухню, достаточно всего лишь найти подходящий образец и просто повторить приемы. Тот же "Pinterest" поможет вам в этом.
▫️Но какой бы не была красивой картинка, на фартуке лучшего всего применять именно плитку, без каких-либо пристеночных бортиков.
▫️А самым беспроигрышным вариантом будут рисунки: мрамора, оникса и песчаника. Средняя стоимость плитки сегодня составляет около 3.000-4.000 рублей за квадрат.
▫️Из производителей могу смело рекомендовать:
- ITALON;
- Kerama marazzi;
▫️Выделять фасады кухни яркими цветами - не самая лучшая идея, особенно без опыта оформления. Лучше всего "разбейте" кухню на 2 цвета. Например: серый и белый.
▫️Нижние фасады кухни могут быть темными, а верхние навесные - светлыми. Также можно попробовать сделать и наоборот, что я и сделал в одном из проектов. Здесь уже дело вкуса)
Всем солнечной и продуктивной недели ✌🏻
Как и чем оформить стык с плиткой?
▫️Оформить примыкание напольного покрытия в коридоре с плиткой можно разными способами, но сейчас я покажу вам простое и проверенное решение.
▫️Если в коридоре уложен кварц-винил (spc-ламинат), то стык между плиткой и винилом оформляется при помощи эпоксидной затирки. Применять алюминиевые профили в этом случае совсем необязательно.
▫️Также нужно заранее учесть, чтобы стык между плиткой и основным покрытием был под дверным полотном.
▫️Если в коридоре применяется кварцевый паркет, то стык с плиткой оформляется также, при помощи эпоксидной затирки.
▫️Если в коридоре уложен ламинат или инженерная доска, то стык с плиткой лучше оформить при помощи пробкового компенсатора в цвет доски.
▫️Дело в том, что в зависимости от влажности, ламинат и доска имеют свойство расширяться. Компенсатор в свою очередь позволяет напольному покрытию расширяться и сжиматься, без каких-либо повреждений.
Все легкой и продуктивной недели ✌🏻
▫️Оформить примыкание напольного покрытия в коридоре с плиткой можно разными способами, но сейчас я покажу вам простое и проверенное решение.
▫️Если в коридоре уложен кварц-винил (spc-ламинат), то стык между плиткой и винилом оформляется при помощи эпоксидной затирки. Применять алюминиевые профили в этом случае совсем необязательно.
▫️Также нужно заранее учесть, чтобы стык между плиткой и основным покрытием был под дверным полотном.
▫️Если в коридоре применяется кварцевый паркет, то стык с плиткой оформляется также, при помощи эпоксидной затирки.
▫️Если в коридоре уложен ламинат или инженерная доска, то стык с плиткой лучше оформить при помощи пробкового компенсатора в цвет доски.
▫️Дело в том, что в зависимости от влажности, ламинат и доска имеют свойство расширяться. Компенсатор в свою очередь позволяет напольному покрытию расширяться и сжиматься, без каких-либо повреждений.
Все легкой и продуктивной недели ✌🏻
Сколько стоит обустроить ванную?🤔
▫️Чтобы переехать в новую квартиру и не тратить лишние деньги на аренду, в большинстве случаев нам достаточно иметь:
- Кухню;
- Спальню;
- Ванную и санузел;
▫️Все остальное, как правило, приобретается и обустраивается уже в процессе проживания.
▫️Ванная комната - это одно из самых дорогих в отделке помещений, поэтому не торопитесь расставаться с деньгами, скупая различный декор на маркетплейсах)
▫️В отделке стен, чаще всего, применяется керамогранит, а его средняя стоимость составляет 3000р за квадрат. Укладка плитки стоит примерно 1500-2000р за квадрат.
▫️Акриловая ванна на каркасе - 25000 рублей. Чугунная обойдется примерно в 50000 рублей. Литьевой мрамор - от 70000 рублей.
▫️Инсталляция унитаза, кнопка слива и чаша унитаза (Grohe, Iddis) 18000 + 15000 рублей.
▫️Душевая система с лейкой - 25000 рублей.
▫️Смеситель мойки и мойка - 6000 + 12000 рублей.
▫️Зеркало с подсветкой - 12000 рублей.
▫️Полотенцесушитель (водяной или электро) - 25000 рублей.
ИТОГО:
На ванную, площадью 4,5 кв.м, ушло:
- 60000 рублей на плитку;
- 35000 + 10000 рулей за работу плиточника и клей;
- 138000 рублей на всю сантехнику;
- 15000 рублей за подключение всей сантехники;
- 35000 рублей за отделку инсталляции панелями;
Надеюсь, что это простая смета будет для вас полезна ✌🏻
▫️Чтобы переехать в новую квартиру и не тратить лишние деньги на аренду, в большинстве случаев нам достаточно иметь:
- Кухню;
- Спальню;
- Ванную и санузел;
▫️Все остальное, как правило, приобретается и обустраивается уже в процессе проживания.
▫️Ванная комната - это одно из самых дорогих в отделке помещений, поэтому не торопитесь расставаться с деньгами, скупая различный декор на маркетплейсах)
▫️В отделке стен, чаще всего, применяется керамогранит, а его средняя стоимость составляет 3000р за квадрат. Укладка плитки стоит примерно 1500-2000р за квадрат.
▫️Акриловая ванна на каркасе - 25000 рублей. Чугунная обойдется примерно в 50000 рублей. Литьевой мрамор - от 70000 рублей.
▫️Инсталляция унитаза, кнопка слива и чаша унитаза (Grohe, Iddis) 18000 + 15000 рублей.
▫️Душевая система с лейкой - 25000 рублей.
▫️Смеситель мойки и мойка - 6000 + 12000 рублей.
▫️Зеркало с подсветкой - 12000 рублей.
▫️Полотенцесушитель (водяной или электро) - 25000 рублей.
ИТОГО:
На ванную, площадью 4,5 кв.м, ушло:
- 60000 рублей на плитку;
- 35000 + 10000 рулей за работу плиточника и клей;
- 138000 рублей на всю сантехнику;
- 15000 рублей за подключение всей сантехники;
- 35000 рублей за отделку инсталляции панелями;
Надеюсь, что это простая смета будет для вас полезна ✌🏻
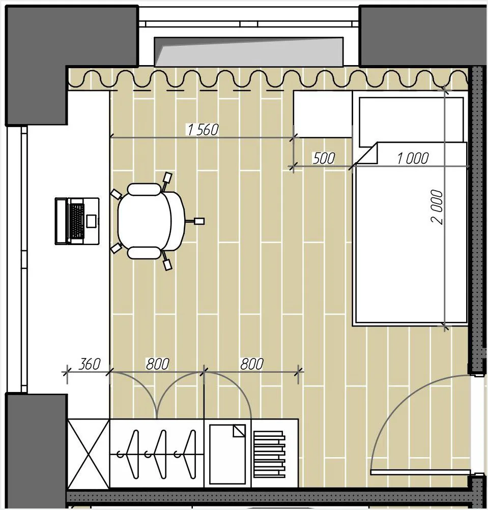
Идеи в оформлении 💡
▫️В современных ЖК достаточно часто встречаются квартиры с угловыми комнатами, где предусмотрено сразу 2 окна.
▫️С одной стороны, комната становится более светлой, но с другой, возникает сложность при расстановке мебели. Особенно в помещениях с небольшой площадью.
▫️По сути, у нас остается только две свободные стены, вдоль которых мы можем установить мебель.
▫️Если это спальня или детская, то вдоль одной стены мы можем расположить кровать, а вдоль другой - полноценный шкаф.
▫️Рабочий стол в этом случае стоит установить у окна, а для того, чтобы в солнечный день можно было комфортно поработать, предусматриваем римскую штору или тюль.
▫️Такие шторы и тюль лучше всего сочетаются с классическими и "не спорят" между собой, в отличие от рулонных.
Еще одна идея вам в копилку🤫
▫️В современных ЖК достаточно часто встречаются квартиры с угловыми комнатами, где предусмотрено сразу 2 окна.
▫️С одной стороны, комната становится более светлой, но с другой, возникает сложность при расстановке мебели. Особенно в помещениях с небольшой площадью.
▫️По сути, у нас остается только две свободные стены, вдоль которых мы можем установить мебель.
▫️Если это спальня или детская, то вдоль одной стены мы можем расположить кровать, а вдоль другой - полноценный шкаф.
▫️Рабочий стол в этом случае стоит установить у окна, а для того, чтобы в солнечный день можно было комфортно поработать, предусматриваем римскую штору или тюль.
▫️Такие шторы и тюль лучше всего сочетаются с классическими и "не спорят" между собой, в отличие от рулонных.
Еще одна идея вам в копилку🤫